鋼構節點詳圖的識讀
鋼構的連接有焊縫連接、鉚釘連接、普通螺栓連接和高強度螺栓連接,其連接部位統稱為節點。連接設計是否合理。直接影響到結構的使用安全,施工工藝和工程造價,鋼構設計節點十分重要。鋼構節點設計的原則是安全可靠,構造簡單,施工方便和經濟合理。
一、梁柱節點連接詳圖
梁柱連接按轉動剛度不同分為剛性、半剛性和鉸接三類。下圖為梁柱連接的節點詳圖。在此連接詳圖中,梁柱連接采用螺栓和焊縫的混合連接,梁翼緣與柱翼緣為剖口對接焊縫,為保證焊透,施焊時梁翼緣下面需設小襯板,襯板反面與柱翼緣相接處宜用角焊縫補焊。梁腹板與柱翼緣用螺栓與剪切板相連接,剪切板與柱翼緣采用雙面角焊縫,此連接節點為剛性連接。
二、梁拼接詳圖
下圖為梁拼接連接詳圖。從圖中可以看出,兩段梁拼接采用螺栓和焊縫混合連接,梁翼緣為坡口對接焊縫連接,腹板采用兩側雙蓋板高強螺栓連接,此連接為剛性連接。
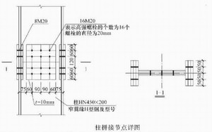
三、柱拼接詳圖
下圖為柱拼接連接詳圖。在此詳圖中,可知此鋼柱為等截面拼接,拼接板均采用雙蓋板連接,螺栓為高強度螺栓。作為柱構件,在節點處要求能夠傳遞彎矩、剪力和軸力,柱連接必須為剛性連接。
免責聲明:本文來源于網絡,由網友提供或網絡搜集,僅供個人研究、交流學習使用,不涉及商業盈利目的。如有版權問題,請聯系本站管理員予以更改或刪除。華邦鋼構會定期發布西安鋼構等相關資料文章,包括鋼構廠房、鋼構住宅、鋼構高層、鋼構建筑、鋼構工程等領域,敬請關注!
行業動態
- 鋼構熔透焊焊接接頭的核
- 鋼構焊接引弧的規范要求
- 鋼構防止層狀撕裂的關鍵
- 超聲波探傷的方法
- 鋼構焊接工藝的評定流程
- 關于鋼構網架荷載計算的
- 如何提高鋼構夾層的施工
- 常見的鋼構焊接工藝
- 如何有效提升鋼構的耐久
- 全面提升鋼構承載能力的
公司動態
行業動態
- H型鋼的主要特征
- 鋼構工程梁和柱的剛接以
- 鋼構工程引弧板、引出板
- 如何給鋼構廠房進行采光
- 鋼構廠房的柱間垂直支撐
- 鋼構廠房樓承板施工方法
- 搭建鋼構廠房閣樓都有哪
- 鋼構住宅的柱間支撐系統
- 鋼構廠房的抗震縫和沉降
- 鋼構廠房地基下沉的處理





鋼構廠房